⭐Odświeżone⭐z balkonem⭐parkingiem⭐i rowerownią⭐

Mieszkanie na wynajem
3 200,00 PLN , Pow. 37,43 m2
Drukuj ofertę
Drukuj ofertę
Typ nieruchomości:
Mieszkanie
Powierzchnia:
37,43 m2
Typ transakcji:
wynajem
Liczba pokoi:
2
Lokalizacja:
Warszawa Wola , Pawia
Rok budowy:
1960
Piętro:
1 na 3
Numer oferty:
709500
Cena za m2:
85,49 PLN
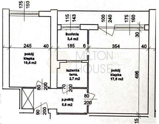
2 pokoje | 37 m² + balkon + rowerownia + parking | ul. Pawia (Wola/Śródmieście)
Do wynajęcia jasne, ciche mieszkanie 2-pokojowe (37,43 m²) z widną, osobną kuchnią i balkonem, po odświeżeniu. Lokal na 1. piętrze w niskim, 3-piętrowym bloku z lat 60. Okna z ekspozycją zachodnią z widokiem na drzewa.

Układ i standard
• Salon 17m² + sypialnia 10m² + oddzielna widna kuchnia z wejściem z salonu + łazienka + przedpokój
• Podłogi: parkiet i terakota
• Łazienka: kabina prysznicowa, pralka

Wyposażenie (najważniejsze)

• Sypialnia: łóżko, szafa
• Przedpokój: szafa w zabudowie, komoda
• Salon: narożnik z funkcją spania, regały
• Kuchnia: lodówka, płyta gazowa, zmywarka + podstawowe wyposażenie (sztućce, talerze, garnki)

Dodatkowo w cenie
• 1 miejsce parkingowe na zewnętrznym, zamykanym parkingu obok bloku (przy ul. Anielewicza)
• Rowerownia w budynku

Koszty i warunki
• Najem okazjonalny, bez zwierząt, dla osób niepalących
• Czynsz najmu: 3 200 zł / mies.
• Czynsz administracyjny: 623 zł / mies plus prąd i gaz wg zużycia
• Kaucja: 1-miesięczny czynsz (3 200 zł)
• Min. okres najmu: 12 miesięcy
• Najemca ponosi koszt prowizji dla biura nieruchomości

Lokalizacja i komunikacja
W pobliżu przystanki autobusowe i tramwajowe Smocza i Anielewicza.
Orientacyjne odległości pieszo (liczone od okolicy ul. Pawiej / przystanku Smocza):
• Westfield Arkadia (okolice Ronda „Radosława”): ok. 1,4 km 
• Metro Ratusz Arsenał (M1): ok. 1,4 km 
• Rondo ONZ (M2): ok. 1,8 km 
• Rondo Daszyńskiego (M2): ok. 2,1 km 
• Dworzec Centralny / Złote Tarasy: ok. 2 km 

Zapraszam na prezentację
Nieprawidłowy adres E-mail